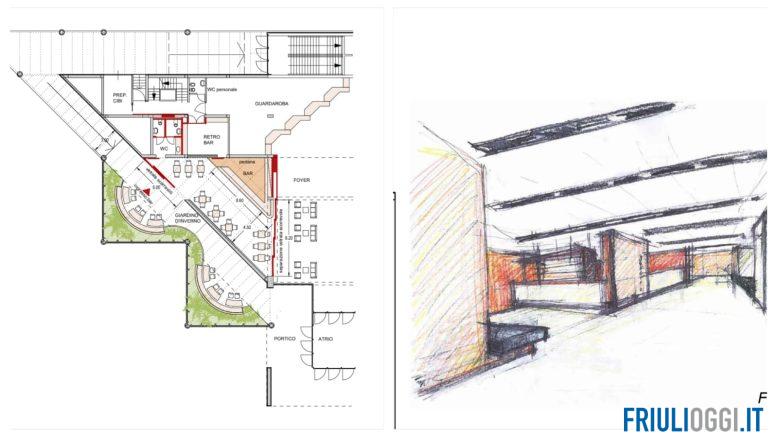
La nuova area bar all’interno del Teatro Nuovo Giovanni da Udine.
La Giunta comunale di Udine ha approvato il progetto esecutivo per la realizzazione di una nuova area bar all’interno del Teatro Nuovo Giovanni da Udine, un intervento strategico che rientra nel più ampio programma di riqualificazione dell’edificio e delle sue funzioni.
Il bar, ad oggi, è parte integrante del foyer, dipende dall’ingresso principale del Teatro ed il suo uso è limitato alle occasioni di apertura del Teatro. Dopo i lavori, il nuovo bar sarà accessibile da un ingresso separato rispetto a quello del luogo di cultura, permettendo l’apertura al pubblico anche in orari diversi da quelli degli spettacoli teatrali. Un elemento chiave del progetto, inoltre, sarà la valorizzazione dell’area esterna, che diventerà lo spazio all’aperto del nuovo bar: un angolo accogliente, vivibile, dotato di ornamenti e sedute, e integrato nel contesto urbano del quartiere, che contribuirà a rendere il Teatro ancora più aperto e fruibile dalla cittadinanza.
L’intervento approvato nell’ultima riunione di giunta, del valore di circa 330 mila euro, è parte di un macro-progetto complessivo di valorizzazione dello stabile del Teatro, che prevede anche la realizzazione di un ridotto, destinato ad ampliare la programmazione culturale e ospitare attività collaterali alla programmazione annuale, nonché l’installazione di un impianto fotovoltaico sul tetto, che permetterà di migliorare l’efficienza energetica della struttura.
Le dichiarazioni.
“Si tratta di un passo importante che renderà il Teatro Nuovo Giovanni da Udine una struttura moderna e sostenibile”, ha dichiarato l’assessore alla cultura Federico Pirone. “Con questi interventi puntiamo a valorizzare ancora di più uno dei luoghi di riferimento della cultura dell’intero Friuli. Uno spazio che, insieme alla Fondazione, vogliamo sempre più aperto, vivo e connesso con la città e la sua comunità”.
Anche l’assessore alle opere pubbliche Ivano Marchiol ha sottolineato la rilevanza dell’intervento: “La valorizzazione di questo luogo rappresenta un esempio di come uno spazio pubblico possa essere trasformato anche in uno spazio di socialità a disposizione dei cittadini, non soltanto durante le attività del teatro. In questo modo puntiamo a realizzare una sorta di nuova piccola piazza in un quartiere in cui abbiamo già attivato diversi interventi migliorativi negli ultimi mesi e che si è dimostrato molto recettivo e partecipe nel favorire il cambiamento per una città più a misura di persona”.
“La realizzazione del nuovo bar del Teatro Nuovo Giovanni da Udine è un intervento importante di valorizzazione del patrimonio immobiliare comunale”, commenta invece l’assessore al Patrimonio Gea Arcella. “Parliamo di spazi di tutti, prima inutilizzati e in passato addirittura ‘chiusi’, che verranno aperti alla collettività con una nuova funzione, capace di generare socialità, vivacità in quartiere e nuove opportunità di fruizione, aumentando la capacità di attrarre persone e di avvicinarle alla programmazione culturale del teatro stesso”.




