Udine Manzano Italia 33044

Prezzo da definire
Dettagli della Proprietà

Udine Manzano Italia 33044

Prezzo da definire
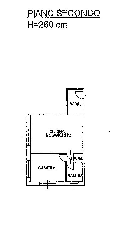
Descrizione

appartamento in vendita a Manzano

- Udine Italia

MANZANO– In piccola palazzina con poche unità abitative, situata in zona servita ma tranquilla,proponiamo ampio e Guarda l’annuncio completo

Caratteristiche della struttura

Be the first to comment on "appartamento in vendita a Manzano"

Scrivi un commento

Your email address will not be published.


*