Nuovi lavori per il capo da rugby di Udine.
Nel corso della riunione di martedì scorso, la Giunta comunale di Udine ha condiviso l’intenzione di apportare importanti lavori di ampiamento e riqualificazione dell’impianto sportivo dedicato al rugby di viale 25 aprile, a est della città, di proprietà comunale (insieme al campo di via del Maglio, a Paderno) e caposaldo dello sport in uno dei quartieri più popolosi di Udine.
È stato infatti approvato il documento di fattibilità economica che darà ufficialmente il via alla fase di progettazione delle opere, che si svilupperà nei prossimi mesi, grazie anche a contributi regionali. Il quadro complessivo dell’opera, di cui il Comune coprirà una quota pari al 20%, ammonta a 590 mila euro. Secondo il cronoprogramma approvato, i lavori partiranno entro l’inizio di dicembre 2024.
Gli interventi.

L’impianto sportivo subirà una serie di interventi di manutenzione straordinaria e un corposo ampiamento degli spazi a disposizione per l’attività sportiva, per i servizi forniti agli atleti di ogni età e per il pubblico che ogni settimana si riunisce in occasione degli eventi sportivi.
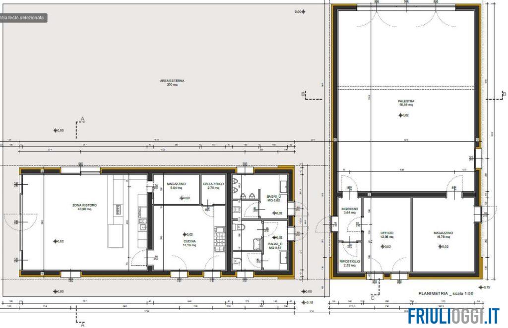
Nel contesto dell’impianto rugbistico sarà costruito un edificio nuovo, che diventerà una palestra da 90 metri quadri e andrà ad arricchire sostanziosamente l’offerta sportiva. All’interno dello stesso immobile di nuova costruzione sarà previsto uno spazio anche l’ufficio per l’attività amministrativa della società sportiva e un magazzino per l’attrezzatura della palestra.
Un secondo capitolo di interventi invece l’area adibita al cosiddetto “terzo tempo”. È infatti intenzione dell’Amministrazione inserire nella progettazione anche la realizzazione di una struttura da trasformare nella nuova Club House aperta ai tesserati, al pubblico e ai genitori che seguono le partite.
Gli interventi di manutenzione saranno infine concentrati sull’eliminazione delle barriere architettoniche, che ad oggi rendono difficoltoso l’accesso alle persone con disabilità o difficoltà motorie. Saranno realizzati specifici percorsi pedonali di collegamento tra i cancelli d’ingresso, gli spogliatoi, i magazzini e i servizi. Dal punto di vista ambientale tutti gli interventi saranno realizzati all’insegna della sostenibilità. Le nuove costruzioni saranno infatti improntate all’efficientamento dei consumi e al risparmio energetico, e sarà installato anche un impianto fotovoltaico per l’approvvigionamento d’energia.




